Дом по адресу Новосибирск, Комета-Березка тер.СОСН, за 5600000 р.

Адрес Новосибирск, Комета-Березка тер.СОСН
Цена 5 600 000 р.
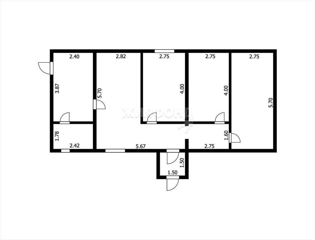
Площадь дома 82,1 м2, участка 8,64 м2
Дом по ул. с/о Комета-березка. Общей площадью: 82.10 кв.м. В продаже дом в городской черте. МЖК, остановка транспорта ж. м Плющихинский. Дом круглогодичного проживания, 2023 года постройки. Дом и земля в собственности. Есть прописка. В доме свет, вода городская центральная, канализация ( септик) , отопление электрическое. В стадии оформления документы на подключение газа. Участок по периметру огорожен забором. Дорога и подъездные пути чистятся! В доме кухня- гостиная 16 кв. м, три комнаты площадью ( 11кв. м , 11 кв. м, 15.6кв.м. ) коридор 9 кв.м. Санузел в доме ( 4,3 кв. м) , отдельное помещение ( котельная) . Участок идеально ровный, обработанный, огороженный по периметру забором. Приглашаем на просмотр. Возможен обмен на вашу недвижимость. Возможна продажа в рассрочку. При звонке, пожалуйста, сообщите номер варианта - JV008054173413
Объявление № 22461008
Дата подачи:
5 июня 2025 г. 2:23
Дата обновления:
5 июня 2025 г. 2:23
Просмотров 22 Хотите продать быстрее?

Продавец
Елена Валерьевна
Показать номер телефона
Пожаловаться
Комментарии:
Добавить